PARGAR STUDIO

Projects

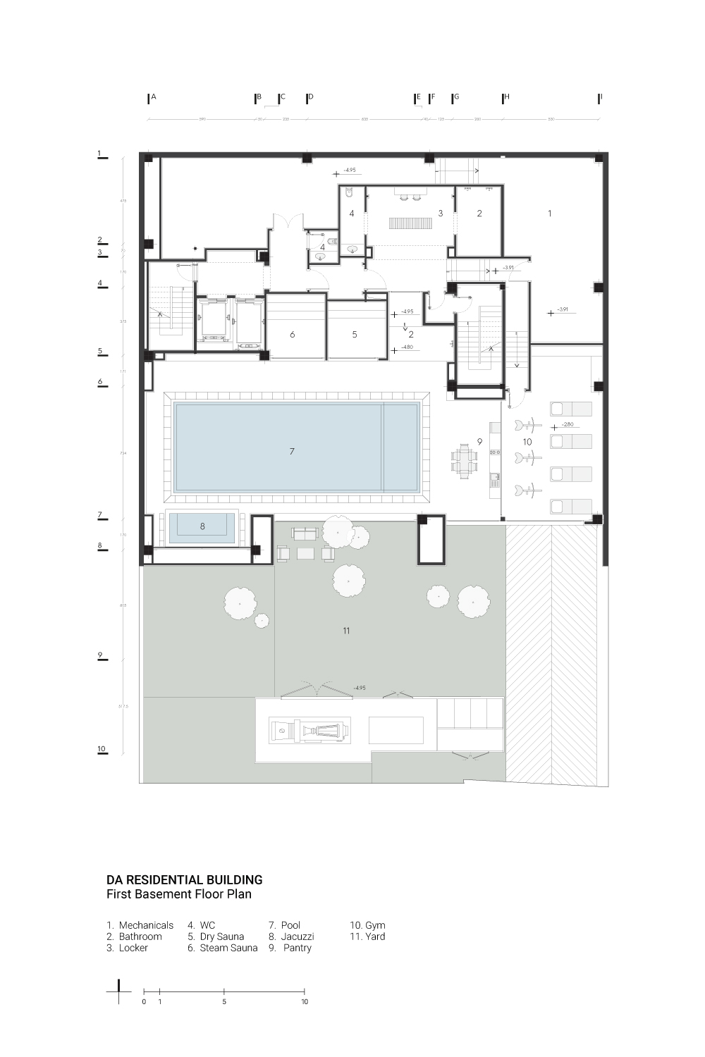
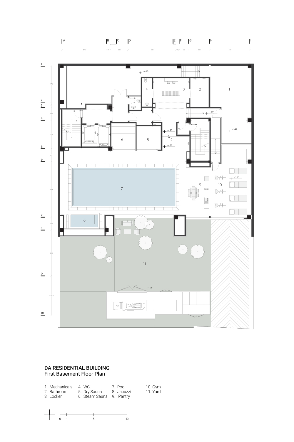
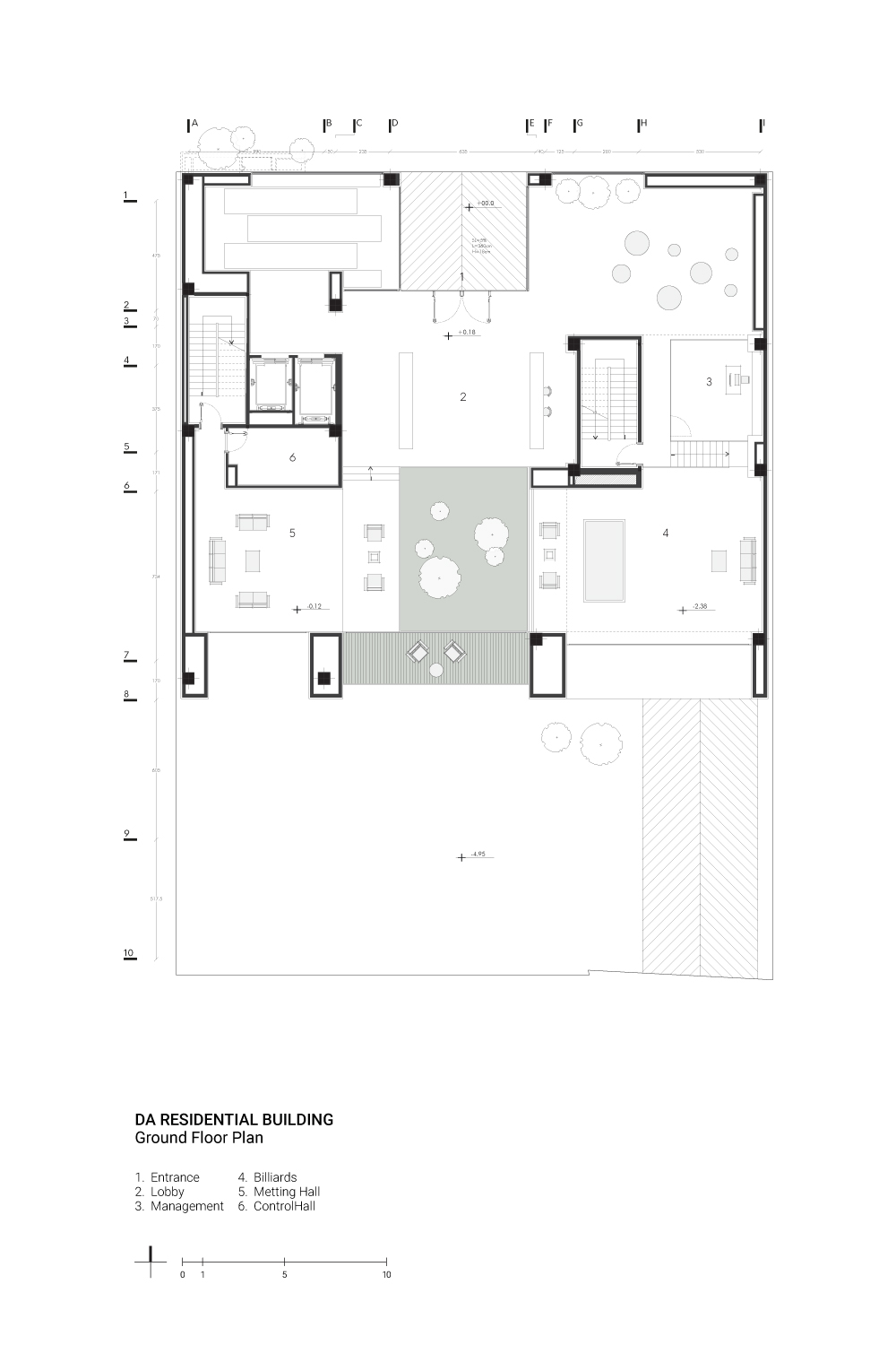
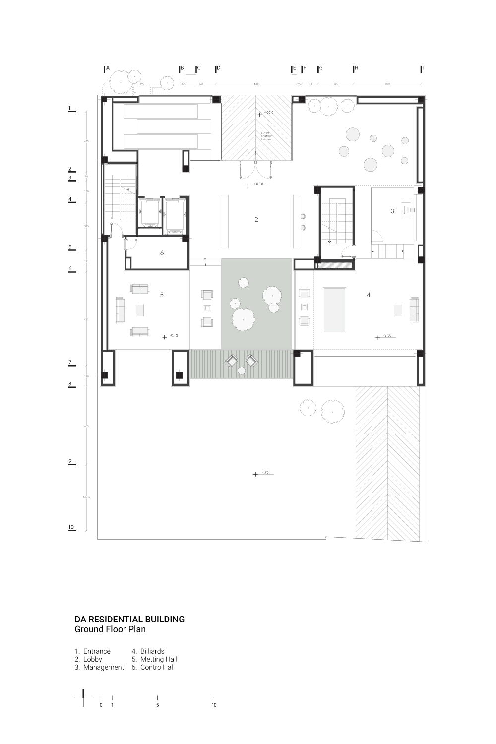
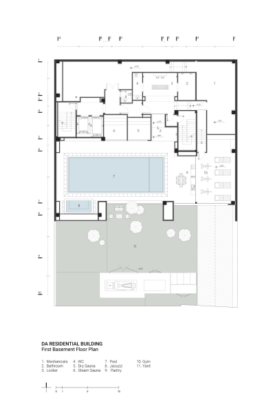
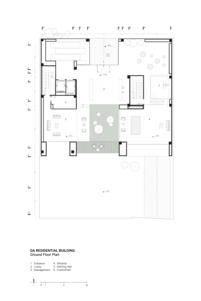
Da Residential Building

ساختمان مسکونی دا

  • Type: Residential
  • Status: Under Construction
  • Scale: Medium
  • Date: 2019
  • Location: Aqdasiyeh, Tehran
  • Lead Architects: Behzad Heidari, Shirin Samadian
  • Design Team: Shima Khoshpasand, Behnam Barzegar, Rokhsareh Panahinejad, Diba Baghernejad, Milad Hasanzade, Zahra Salehi, Sepideh Hosseini, Fatima Mottaghian
  • Presentation Team: Alireza Nejadfallah, Omid Majd Taheri, Amin Akbarinejad, Sepideh Shirzadi, Farnaz Ejlali
  • Structure: Jalal-al-din Sajadian
  • Mechanical Consultant: Kianoush Mohamadi
  • Electrical Cosultant: Mehdi Ghandilzadeh
  • Area: 7853m²
More
  • نوع: مسکونی
  • وضعیت: درحال ساخت
  • اندازه: متوسط
  • تاریخ: 1398
  • محل اجرا: تهران، اقدسیه
  • معماران ارشد: بهزاد حیدری، شیرین صمدیان
  • تیم طراحی: شیما خوش‌پسند، بهنام برزگر، رخساره پناهی‌نژاد، دیبا باقرنژاد، میلاد حسن‌زاده، زهرا صالحی، سپیده حسینی، فاطیما متقیان
  • تیم ارائه: علیرضا نژادفلاح، امید مجد‌طاهری، امین اکبری‌نژاد، سپیده شیرزادی، فرناز اجلالی
  • سازه: جلال‌الدین سجادیان
  • تاسیسات مکانیکی: کیانوش محمدی
  • تاسیسات الکتریکی: مهدی قندیل‌زاده
  • مساحت: 7853 مترمربع
بیشتر
FA

Design

Media

About US

Contact

PARGAR STUDIO

Projects

Design

Media

About US

Contact

FA

Da Residential Building

ساختمان مسکونی دا

  • Type: Residential
  • Status: Under Construction
  • Scale: Medium
  • Date: 2019
  • Location: Aqdasiyeh, Tehran
  • Lead Architects: Behzad Heidari, Shirin Samadian
  • Design Team: Shima Khoshpasand, Behnam Barzegar, Rokhsareh Panahinejad, Diba Baghernejad, Milad Hasanzade, Zahra Salehi, Sepideh Hosseini, Fatima Mottaghian
  • Presentation Team: Alireza Nejadfallah, Omid Majd Taheri, Amin Akbarinejad, Sepideh Shirzadi, Farnaz Ejlali
  • Structure: Jalal-al-din Sajadian
  • Mechanical Consultant: Kianoush Mohamadi
  • Electrical Cosultant: Mehdi Ghandilzadeh
  • Area: 7853m²
More
  • نوع: مسکونی
  • وضعیت: درحال ساخت
  • اندازه: متوسط
  • تاریخ: 1398
  • محل اجرا: تهران، اقدسیه
  • معماران ارشد: بهزاد حیدری، شیرین صمدیان
  • تیم طراحی: شیما خوش‌پسند، بهنام برزگر، رخساره پناهی‌نژاد، دیبا باقرنژاد، میلاد حسن‌زاده، زهرا صالحی، سپیده حسینی، فاطیما متقیان
  • تیم ارائه: علیرضا نژادفلاح، امید مجد‌طاهری، امین اکبری‌نژاد، سپیده شیرزادی، فرناز اجلالی
  • سازه: جلال‌الدین سجادیان
  • تاسیسات مکانیکی: کیانوش محمدی
  • تاسیسات الکتریکی: مهدی قندیل‌زاده
  • مساحت: 7853 مترمربع
بیشتر